18586 Baabe, Doppelhaushälfte zum Kauf

Video

Kontaktdaten

Christian Karohs, 2CK Immobilien

Objektdaten

  • Objekt-ID
    2025314
  • Objekttypen
    Doppelhaushälfte, Haus
  • Adresse
    Seestraße 9 B
    18586 Baabe
  • Etagen im Haus
    2
  • Wohnfläche ca.
    125 m²
  • Nutzfläche ca.
    20 m²
  • Grund­stück ca.
    305 m²
  • Zimmer
    5
  • Schlafzimmer
    3
  • Badezimmer
    2
  • Separate WC
    1
  • Balkone
    1
  • Terrassen
    1
  • Heizungsart
    Fußbodenheizung
  • Wesentlicher Energieträger
    Gas
  • Baujahr
    2006
  • Zustand
    neuwertig
  • Außen­stellplätze
    2
  • Verfügbar ab
    sofort!
  • Käufer­provision
    3,57 % inkl. 19 % USt.
  • Kaufpreis
    495.000 EUR

Ausstattung / Merkmale

  • ✓ Balkon
  • ✓ Kabel-/Sat-TV
  • ✓ Kamin
  • ✓ Separates WC
  • ✓ Terrasse

Energieausweis

  • Energieausweistyp
    Verbrauchs­ausweis
  • Gültig bis
    20.02.2035
  • Gebäudeart
    Wohngebäude
  • Baujahr lt. Energieausweis
    2006
  • Primärenergieträger
    Gas
  • Endenergie­verbrauch
    136,25 kWh/(m²·a)
  • Energie­effizienz­klasse
    E
0 25 50 75 100 125 150 175 200 225 250+ H G F E D C B A A+ H G F E D C B A A+ Endenergieverbrauch 136,20 kWh/(m²·a)

Objekt­beschreibung

Beschreibung

Zum Verkauf steht eine sehr hochwertige Doppelhaushälfte im malerischen Ostseebad Baabe.

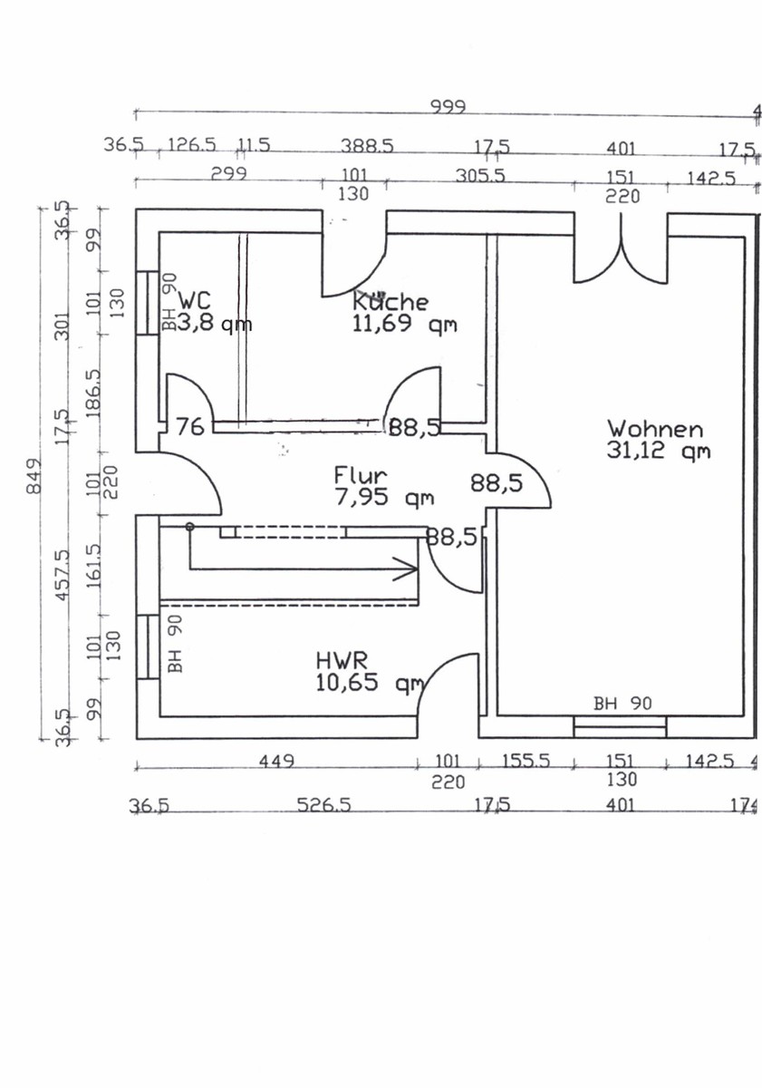
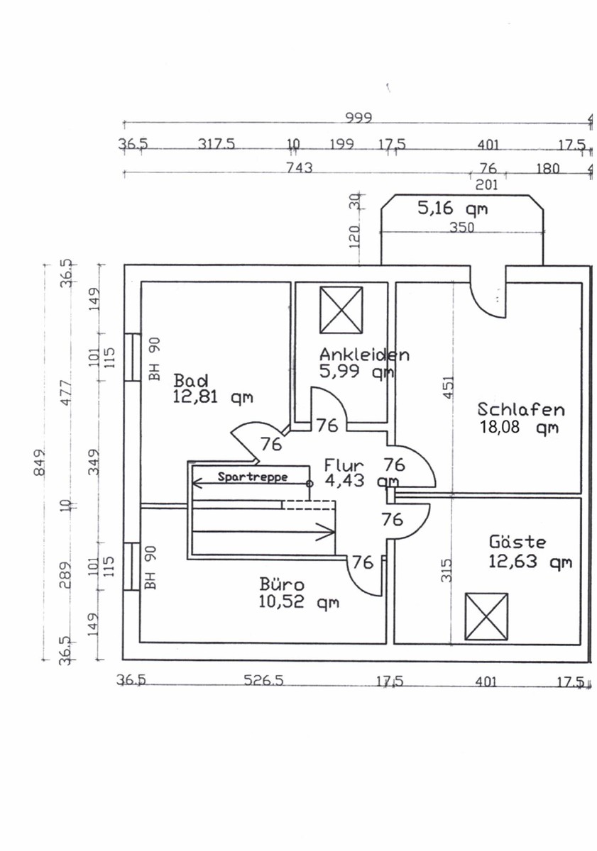
Mit einer großzügigen Wohnfläche von 125,48 m² und zusätzlichen 20 m² Nutzfläche im Dachgeschoss bietet dieses Haus ausreichend Platz für Familien oder als selbstgenutzte Ferienresidenz. Hinweis: eine neue Gastherme für über 8.700 € wurde 10/2024 in Betrieb genommen!

Die Immobilie verfügt über insgesamt 5 ½ Zimmer, darunter zwei einladende Schlafzimmer, ein Kinderzimmer, das helle Wohnzimmer mit Essbereich, einen praktischen Ankleideraum und ein Homeoffice, das sich ideal für das Arbeiten von zu Hause eignet.

Das Duschbadezimmer ist tagesbelichtet und sorgt für eine angenehme Atmosphäre, während das Wannenbad mit Dusche und Doppelwaschbecken ebenfalls tagesbelichtet ist und zusätzlichen Komfort bietet.

Die voll ausgestattete Einbauküche im zeitlosen Landhausstil ist mit hochwertigen Markengeräten ausgestattet und lädt zum Kochen und Verweilen ein.

Die Fußbodenheizung auf beiden Etagen sorgt für wohlige Wärme, während die hochwertigen Landhaustüren und der Vinylfußboden im Obergeschoss dem Haus eine elegante Note verleihen. Die Sprossenfenster verleihen der Doppelhaushälfte ihren besonderen Charme. Die elektrischen Jalusien erhöhen den Wohnkomfort.

Ein Kaminofen, der erst im jahr 2023 aufgebaut wurde, im Wohnzimmer schafft an kalten Tagen eine gemütliche Atmosphäre. Die Terrasse und der Balkon bieten zudem die Möglichkeit, die frische Ostseeluft zu genießen. Hinzu kommt ein unverbaubarer Blick auf den Selliner See, wo zu Saisonzeiten die weiße Flotte und Segelboote entspannt beim Einfahren in den Selliner Hafen beobachtet werden können.

Diese Immobilie vereint modernen Komfort mit einem stilvollen Ambiente in einer der schönsten Lagen an der Ostsee. Nutzen Sie die Gelegenheit, Ihr neues Zuhause im Ostseebad Baabe zu entdecken!

Ausstattung

  • 125,48 m² Doppelhaushälfte im Ostseebad Baabe
  • 20 m² Nutzfläche im Dachgeschoss
  • neue Gastherme aus Oktober 2024!
  • neuer Kaminofen aus 2023!
  • zwei Schlafzimmer
  • ein Kinderzimmer
  • elektrisch betriebene Jalousien in beiden Etagen
  • ein Ankleidezimmer/Abstellraum
  • Hauswirtschaftsraum
  • ein Homeoffice
  • voll ausgestattete Einbauküche mit Markengeräten im zeitlosen Landhausstil
  • ein Badezimmer mit Dusche, tagesbelichtet
  • ein Badezimmer mit Badewanne, Dusche und Doppelwaschbecken
  • Terrasse
  • Balkon
  • Fussbodenheizung
  • Kamin
  • Vinylfussboden im Obergeschoss
  • Landhaustüren
  • Spossenfenster
  • Gartenhaus
  • zwei Stellplätze

Sonstiges

Finanzierung:
Unsere Finanzierungsexperten unterbreiten Ihnen gerne ein auf Ihre Bedürfnisse abgestimmtes Finanzierungsangebot.

Ihre Kreditanfragen gehen an über 200 Banken. Somit kann ein günstiger Zinssatz sowie eine schnelle Angebotserarbeitung garantiert werden.

Gern vermarkten wir auch Ihre Immobilie!

Wir freuen uns auf Ihren Anruf und den gemeinsamen Besichtigungstermin:-)

Christian Karohs
2CK-Immobilien
Tel.: +49 178–1888 501
Ihr Immobilienmakler für Rügen/Berlin

Lage

Das Ostseebad Baabe liegt malerisch zwischen dem Selliner See und der Ostsee und bietet eine ideale Kombination aus Natur und Erholung. Die Lage ist perfekt für alle, die die Schönheit der Küste genießen möchten, während sie gleichzeitig Zugang zu den ruhigen Gewässern des Sees haben.

Baabe besticht durch seine charmante Atmosphäre, die von traditionellen Bauten und einer einladenden Strandpromenade geprägt ist. Hier können Sie entspannte Spaziergänge am Strand unternehmen, die frische Meeresluft genießen oder in einem der gemütlichen Cafés verweilen. Die Umgebung lädt zudem zu vielfältigen Freizeitaktivitäten ein, wie Radfahren, Wandern oder Wassersport.

Die Nähe zum Selliner See bietet zusätzliche Möglichkeiten für Erholung und Freizeitgestaltung. Ob Schwimmen, Angeln oder einfach nur Entspannen am Ufer – hier findet jeder sein persönliches Paradies.

Insgesamt ist Baabe nicht nur ein beliebtes Urlaubsziel, sondern auch ein wunderbarer Ort zum Leben, wo Natur und Lebensqualität harmonisch miteinander verbunden sind. Nutzen Sie die Gelegenheit, Teil dieser einzigartigen Gemeinschaft zu werden!

Kindergarten 100 m 

Direktanfrage

* Pflichtangaben
 SSL-verschlüsselt