18586 Baabe, Doppelhaushälfte zum Kauf

Video

Kontaktdaten

Christian Karohs, 2CK Immobilien

reserviert

Dieses Objekt ist zur Zeit leider nicht verfügbar.

Objektdaten

  • Objekt-ID
    2026379
  • Objekttypen
    Doppelhaushälfte, Haus
  • Adresse
    Seestraße 9B
    18586 Baabe
  • Etagen im Haus
    3
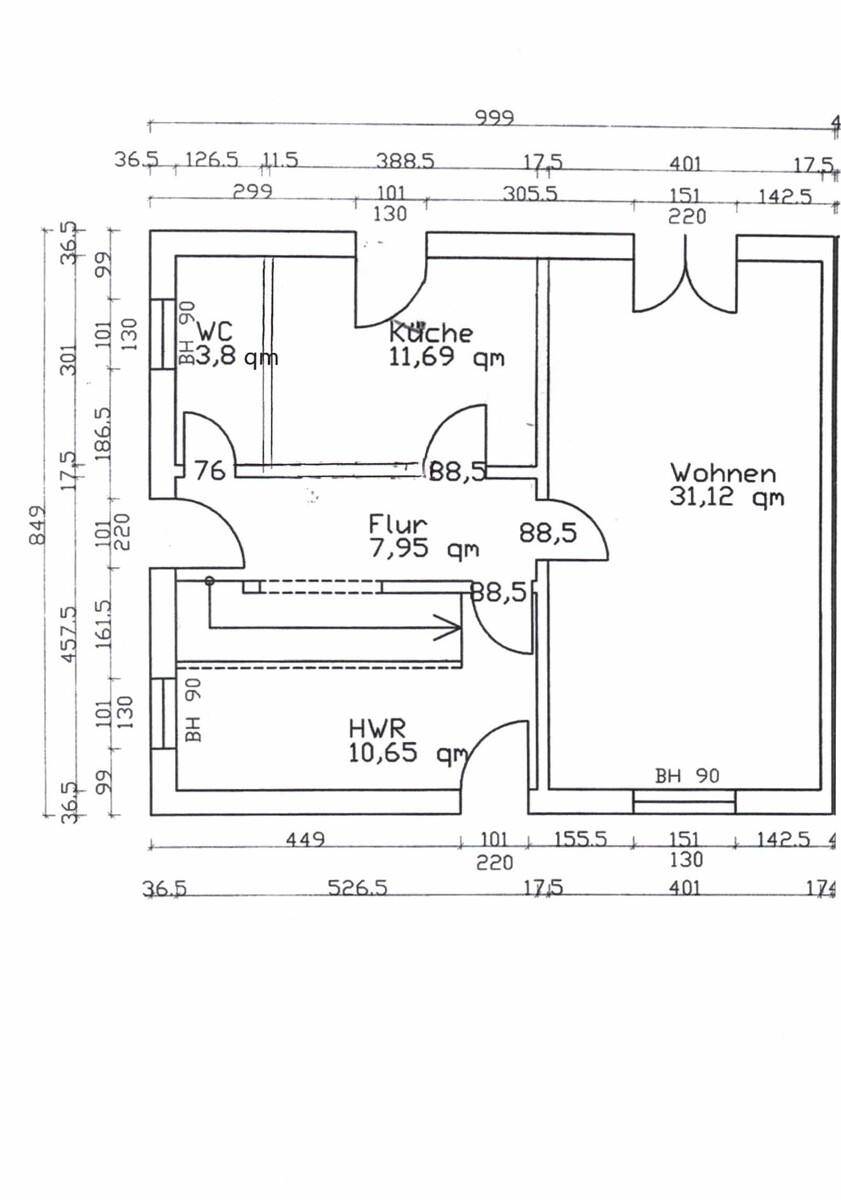
  • Wohnfläche ca.
    125 m²
  • Nutzfläche ca.
    25 m²
  • Grund­stück ca.
    305 m²
  • Zimmer
    5
  • Schlafzimmer
    3
  • Badezimmer
    2
  • Separate WC
    1
  • Balkone
    1
  • Terrassen
    1
  • Heizungsart
    Fußbodenheizung
  • Wesentlicher Energieträger
    Gas
  • Baujahr
    2006
  • Außen­stellplätze
    2
  • Käufer­provision
    3,57 % inkl. 19 % USt.
  • Kaufpreis
    499.000 EUR

Ausstattung / Merkmale

  • ✓ Balkon
  • ✓ Kabel-/Sat-TV
  • ✓ Kamin
  • ✓ Separates WC
  • ✓ Terrasse

Objekt­beschreibung

Beschreibung

Diese Doppelhaushälfte im beliebten Ostseebad Baabe verbindet auf 125,48 m² Wohnfläche klassischen Charme mit moderner Haustechnik.

Schon der erste Blick auf die Fassade mit den stilvollen Sprossenfenstern verrät den gepflegten Charakter der Immobilie, der sich im Inneren konsequent fortsetzt.

Hier erwerben Sie ein Haus, das technisch auf dem neuesten Stand ist: Eine neue Gastherme aus Oktober 2024 sorgt für effiziente Wärme und Zukunftssicherheit.

Wohnen und Leben im Erdgeschoss: Der Mittelpunkt des Hauses ist der großzügige Wohnbereich. Ausgestattet mit einer durchgängigen Fußbodenheizung, bietet dieser Raum zu jeder Jahreszeit ein angenehmes Klima. Ein besonderes Highlight für die kühleren Tage auf der Insel ist der neue Kaminofen (Baujahr 2023), der nicht nur Wärme, sondern echte Gemütlichkeit spendet. Angrenzend finden Sie die voll ausgestattete Einbauküche. Gehalten im zeitlosen Landhausstil und bestückt mit hochwertigen Markengeräten, fügt sie sich harmonisch in das Gesamtbild ein und bietet viel Platz für kulinarische Kreativität.

Komplettiert wird das Erdgeschoss durch ein tagesbelichtetes Badezimmer mit Dusche – ideal für Gäste oder den schnellen Weg nach dem Strandbesuch – sowie einen praktischen Hauswirtschaftsraum, der die Technik und Vorräte ordentlich verbirgt.

Rückzugsorte und Arbeitswelten im Obergeschoss: Über eine massive Treppe erreichen Sie die obere Etage, die durchgehend mit pflegeleichtem und fußwarmem Vinylfussboden ausgelegt ist. Weiße Landhaustüren unterstreichen hier das stimmige Wohnkonzept. Das Raumangebot ist flexibel nutzbar: Neben zwei Schlafzimmern steht Ihnen ein separates Kinderzimmer sowie ein Homeoffice zur Verfügung – perfekt für das moderne Arbeiten von der Küste aus. Ein separates Ankleidezimmer, das auch als Abstellraum genutzt werden kann, sorgt für Ordnung.

Ein besonderer Vorzug dieser Ebene ist der Balkon: Er erweitert nicht nur den Wohnraum nach draußen, sondern bietet Ihnen einen reizvollen Blick auf den Selliner See – der ideale Ort für die erste Tasse Kaffee am Morgen oder entspannte Abendstunden mit Aussicht.

Das Hauptbadezimmer auf dieser Ebene lässt keine Wünsche offen: Es verfügt über eine Badewanne, eine Dusche sowie ein Doppelwaschbecken, sodass auch am Morgen kein Stau entsteht. Vom Obergeschoss aus haben Sie zudem Zugang zum Balkon, der einen privaten Platz an der frischen Luft bietet.

Zusatzflächen und Außenbereich: Sollten Sie mehr Platz benötigen, bietet das Dachgeschoss weitere 20 m² Nutzfläche. Diese Reserve eignet sich hervorragend als Hobbybereich oder großzügiger Stauraum.

Der Außenbereich ist auf Entspannung und geringen Pflegeaufwand ausgelegt. Die Terrasse lädt zu Frühstück und Grillabenden im Freien ein. Gartengeräte, Fahrräder oder Strandutensilien finden im eigenen Gartenhaus ihren Platz. Für Ihren Komfort sind zudem zwei Pkw-Stellplätze direkt am Haus vorhanden. Auch an Details wurde gedacht: Elektrisch betriebene Jalousien in beiden Etagen ermöglichen eine bequeme Lichtsteuerung und Verdunkelung auf Knopfdruck.

Dieses Haus ist eine solide Investition in Lebensqualität – technisch aktualisiert, geschmackvoll ausgestattet und sofort bereit für Ihre Ideen.

Ausstattung

  • 125,48 m² Doppelhaushälfte im Ostseebad Baabe
  • 20 m² Nutzfläche im Dachgeschoss
  • neue Gastherme aus Oktober 2024!
  • neuer Kaminofen aus 2023!
  • zwei Schlafzimmer
  • ein Kinderzimmer
  • elektrisch betriebene Jalousien in beiden Etagen
  • ein Ankleidezimmer/Abstellraum
  • Hauswirtschaftsraum
  • ein Homeoffice
  • voll ausgestattete Einbauküche mit Markengeräten im zeitlosen Landhausstil
  • ein Badezimmer mit Dusche, tagesbelichtet
  • ein Badezimmer mit Badewanne, Dusche und Doppelwaschbecken
  • Terrasse
  • Balkon mit Seeblick!
  • Fussbodenheizung
  • Kamin
  • Vinylfussboden im Obergeschoss
  • Landhaustüren
  • Spossenfenster
  • Gartenhaus
  • zwei Stellplätze

Sonstiges

Energieausweis ist in Auftrag gegeben und liegt zur Besichtigung vor!

Vielen Dank für Ihr Interesse an unserer Immobilienpräsentation!

Wenn Ihnen die Darstellung gefallen hat, würden wir uns freuen, auch Ihre Immobilie professionell und ansprechend zu vermarkten.
Unser Team steht Ihnen mit Erfahrung, Kreativität und Engagement zur Seite, um den bestmöglichen Verkaufserfolg zu erzielen.
Kontaktieren Sie uns gerne – wir freuen uns darauf, gemeinsam Ihre Immobilie zum Erfolg zu führen!

Finanzierung:

Unsere erfahrenen Finanzierungspartner setzen alles daran, für Sie das perfekte Finanzierungsangebot zu finden – maßgeschneidert auf Ihre Wünsche und Bedürfnisse.
Durch die Zusammenarbeit mit über 100 Banken können wir Ihnen nicht nur die besten Konditionen sichern, sondern auch eine schnelle und unkomplizierte Angebotserstellung garantieren. Für uns ist Ihre Immobilie mehr als nur ein Objekt – sie ist Ihr Zuhause,

Ihre Zukunft. Deshalb geben wir alles, um Ihren Traum vom Eigenheim Wirklichkeit werden zu lassen!

Ich freue mich schon jetzt auf Ihren Anruf und darauf, gemeinsam Ihren nächsten Schritt zu gehen – sei es bei der Finanzierung oder bei der Vermarktung Ihrer Immobilie!

Herzliche Grüße,
Christian Karohs
2CK-Immobilien
Tel.: +49 178–1888 501
Ihr Immobilienmakler für Rügen und Berlin

Lage

Baabe: Wo unberührte Natur auf erstklassige Lebensqualität trifft

Das Ostseebad Baabe, malerisch gelegen auf der Halbinsel Mönchgut, gilt als eines der begehrtesten Juwele der Insel Rügen. Eingebettet zwischen der glitzernden Ostsee im Osten und dem idyllischen Selliner See im Westen, bietet dieser staatlich anerkannte Kurort eine seltene Symbiose aus maritimem Flair, ursprünglicher Natur und moderner Infrastruktur.
Lage und Naturgenuss

Die besondere Attraktivität Baabes begründet sich in seiner Lage am „Tor zum Mönchgut“. Die berühmte Flaniermeile „Strandstraße“ bildet das Herzstück des Ortes und führt gesäumt von Villen im Stil der Bäderarchitektur direkt zum feinsandigen, kilometerlangen Ostseestrand. Wer hier lebt, genießt die Vorzüge eines gesunden Bioklimas, das durch die weiten Kiefernwälder der Baaber Heide und die frische Seeluft geprägt wird.
Hervorragende Infrastruktur für den Alltag

Baabe bietet weit mehr als reine Urlaubsatmosphäre; es ist ein voll funktionsfähiger Wohnstandort mit kurzen Wegen:

Einkaufen & Nahversorgung: Für den täglichen Bedarf stehen mehrere gut sortierte Supermärkte und regionale Fachgeschäfte direkt im Ort zur Verfügung. Frische Backwaren und lokale Spezialitäten sind in wenigen Gehminuten erreichbar.

Kulinarik: Die Gastronomieszene ist vielfältig und hochwertig. Von urigen Fischrestaurants am Bollwerk bis hin zu gehobener Gastronomie in den Hotels der Strandstraße findet sich für jeden Geschmack das passende Angebot.

Medizinische Versorgung: Eine umfassende gesundheitliche Betreuung ist durch ansässige Allgemeinmediziner, Zahnärzte sowie eine Apotheke direkt vor Ort gewährleistet. Die nahegelegenen Zentren wie Bergen auf Rügen bieten zudem spezialisierte Fachkliniken.

Maritimes Highlight: Der Hafen Baabe

Ein besonderes Glanzstück ist das „Baaber Bollwerk“. Der idyllische Hafen am Selliner See verbindet Tradition mit Freizeitwert. Von hier aus setzen nicht nur die Fähren nach Moritzdorf über, sondern es bietet sich auch ein idealer Ausgangspunkt für Segler und Wassersportler. Der Blick auf die sanften Hügel des Mönchguts und das ruhige Wasser der Boddengewässer macht den Hafen zu einem Ort der absoluten Entschleunigung.

Fazit: Das Leben in Baabe bedeutet, dort zu wohnen, wo andere Urlaub machen – ohne auf den Komfort einer modernen Infrastruktur verzichten zu müssen. Die perfekte Anbindung an die „Rasende Roland“-Schmalspurbahn und das gut ausgebaute Radwegenetz unterstreichen die Mobilität in dieser einzigartigen Naturlandschaft.

Direktanfrage

Hinweis: Das Anfordern des Exposés und Besichtigungen sind für Sie völlig kostenlos und unverbindlich. Eine Maklerprovision wird erst fällig, wenn Sie diese Immobilie tatsächlich kaufen/mieten (Erfolgsprinzip). Der Buttontext 'zahlungspflichtig bestellen' ist gesetzlich für Makler vorgeschrieben.

* Pflichtangaben
 SSL-verschlüsselt